KAPCSOLATFELVÉTEL
Ingatlan jellege
családi ház
Belső terület
74 m²
Telek terület
2889 m²
Tájolás
kelet
Építési állapot
használt
Építési mód
tégla
Szobák száma
2 szoba
Épület szintje
1.
Épült
1945
Ingatlan állapot
 
										kívül: részben felújított
belül: felújított									
Ablak szerkezete
2 rétegű thermoplan
Fűtés
gázkazán
Komfort
összkomfort
Parkolás
van fedetlen felszíni beálló
Közműállapot
 
								csatorna: bekötve										
								gáz: bekötve										
								villany: bekötve										
								víz: bekötve										
									
Energetika
H 2024:
Baranya megye, Sellye, Domb utca
Irányár
(277.03 E Ft/㎡)
Szobák
Terület
Telek terület
Az épület kb 1940-es tégla építésű épület, 2015-ben jelentős felújításokon esett át az épület - új tetőszerkezetet kapott, minden nyílászáró műanyagra cserélve, a teljes víz és villanyvezeték ki lett cserélve és ekkor lett kialakítva az új központi fűtés egy gázkazánnal.
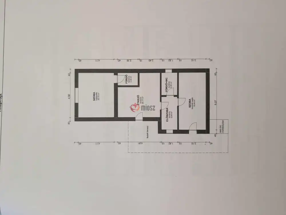
A ház 74 m2-es - étkező-nappali, 2 szoba - egyik szobából saját fürdőszoba+wc nyílik valamint egy különálló szoba, konyhafülke, fürdőszoba+ wc került kialakításra, valamint egy 12 m2-es fedett terasz,
A lakóépület mellett egy tégla építési kisház is található - ez igény esetén egy különálló lakrésszé is kialakítható.
2 db földpince található a területen.
A telek 2889 m2-es , 5 db hrsz található - nem megosztható - kizárólag egyben vásárolható meg!!!!!
A telek füvesített és fásított - számos lehetőséget rejt magában.
Az ingatlan per és tehermentes, azonnal birtokba vehető!
belül: felújított
gáz: bekötve
villany: bekötve
víz: bekötve
Baranya megye, Sellye, Domb utca
Hitelkalkulátor
 
							+36 20 584 1739
morvainikiceges@gmail.com
KAPCSOLATFELVÉTEL
Ingatlan jellege
családi ház
Belső terület
74 m²
Telek terület
2889 m²
Tájolás
kelet
Építési állapot
használt
Építési mód
tégla
Szobák száma
2 szoba
Épület szintje
1.
Épült
1945
Ingatlan állapot
 
									kívül: részben felújított
belül: felújított								
Ablak szerkezete
2 rétegű thermoplan
Fűtés
gázkazán
Komfort
összkomfort
Parkolás
van fedetlen felszíni beálló
Közműállapot
 
							csatorna: bekötve									
							gáz: bekötve									
							villany: bekötve									
							víz: bekötve									
								
Energetika
H 2024:
 
								 
											 
																 
																 
																 
																 
																 
																 
																 
																 
																 
																 
																 
																 
																 
																 
																 
																 
																 
																 
																 
																 
																 
																 
																 
						
					 
						
					 
						
					 
						
					 
						
					 
						
					 
						
					 
						
					 
						
					 
						
					 
						
					 
						
					 
						
					 
						
					 
						
					 
						
					 
						
					 
						
					 
						
					 
						
					 
						
					 
						
					 
						
					